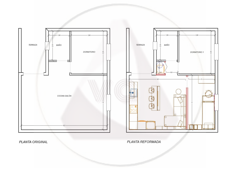
En nuestro proyecto de octubre reformamos un apartamento, incluyendo un dormitorio infantil y redistribuyendo el salón-cocina.
El dormitorio infantil
Ubicado en la zona donde antes estaba el salón, aprovechando la ventana y de dimensiones reducidas. El espacio se ha dividido en 3 zonas: de descanso más juego, almacenamiento y estudio, justo al lado de la ventana. El armario de 1.20 de ancho con puertas correderas despeja la zona.
Excepto el armario y la silla el proyecto debía incorporar el resto de muebles existentes. La estantería sobre la cama se ha integrado pintándola en el mismo tono de la pared (míralo en decorcompras).
![]() |
| Cama, estanterías sobre suelo y colgada. Decoración temática de "gatos" (mural pintado a mano de la pared, textiles y cuadros) y toques naranjas. |
Nueva cocina con salón
Al integrar el dormitorio los metros cuadrados se reducían. Aprovechamos el sofá existente y dividimos visualmente mediante una estantería de poco fondo, con el aparato de tv. hacia el salón y una barra con taburetes para la cocina.
Se conservó el tiro de la campana antigua. Para decorar la cocina usamos pìntura con efectos, azulejos ondulados y tonos vainilla-tierra.
![]() |
| Cocina con barra aprovechando el tiro de la antigua campana extractora. |
Ampliamos visualmente el espacio con un espejo de pie, justo en la entrada. Madera en gris-marrón para las estructuras de muebles y la encimera.
![]() |
| Vista de la entrada desde la cocina. |
Otra estantería en forma de escalera guarda libros y objetos. El papel dorado de hojas recorre la forma escalonada y da vida a este espacio (míralo en decorcompras). Toques nananjas en la alfombra de diseño geométrico, los cojines, el puf, la iluminación y los marcos de los espejos.
Armario para calentador y lavadora
Con la disminución de m² topamos con otro problema: la ubicación de la lavadora (fondo reducido) y el calentador de agua. ¿Cómo resolverlo sin robar más espacio a la cocina?. La solución propuesta: desplazar la puerta del baño unos cms. y aprovechar el hueco de paso para un armario de poco fondo, con tabique de pladur de 0.7 cms. y puerta de acordeón. Este espacio sirve además para almacenar útiles de limpieza.
No se instalaron falsos techos ni focos, lo que permitió aprovechar los antiguos plafones.
![]() |
| Vista del mueble divisor entre salón-cocina. Al fondo puertas en acordeón para el armario de la colada- limpieza. |
Si quieres saber más visita tb. la categoría decorcompras, con revestimientos, textiles y objetos usados en este proyecto y otros para inspirarte.
Recuerda que si necesitas orientación para tu proyecto o quieres un diseño personalizado puedes escribirnos al correo vivogarcanarias@gmail.com. Estaremos encantados de ayudarte con tu decoración o distribución de espacios.
Hasta el próximo post, saludos.








Comentarios